Bungalow

1/29 Hannam Street

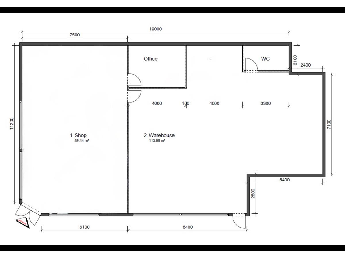
    248M2 PRIME INDUSTRIAL SHOWROOM/WAREHOUSE
    Showcase your business from this 248m2 showroom/warehouse superbly located on a prominent corner fronting Scott and Hannam Street. Offering excellent exposure and easy access to the main transport routes and CBD.
    The showroom features polished concrete floors and double glass entry door complimented by a small air-conditioned office and adjoining large warehouse area with kitchenette and toilets.

    This property is ready for immediate occupation.

    FEATURES
    ▪ Front showroom of 89.44m2 with polished concrete floors
    ▪ High-clearance warehouse of 113.96m2 with roller door access
    ▪ Central location fronting Scott St- close to Mulgrave Road and major transport routes
    ▪ Prominent street frontage with strong signage opportunities
    ▪ Functional layout ideal for trade display, storage, or distribution
    ▪ Air-conditioned office off showroom, kitchenette and toilet

    For Lease

    Available Date

    Thursday 16/10/2025

    Property Information

    • Building Area
      248m²

    Available Documents

    Agent

    Laura Ots

    Director

    Email Laura

    Contact